プレステージ目白台
3F
教育施設や公園が点在する文京区護国
住環境良好♪ 護国寺駅から徒歩3分の好立地
“駅から3分の高い利便性に加え有楽町線「護国寺」駅より徒歩2分♪
閑静な住宅地・居住性も魅力の物件です
- 賃料
- 24.8万円
- 共益費
- 12,000円
- 種目
- マンション
- 所在地
- 東京都文京区目白台3丁目29-23
- 棟・階数・部屋番号
- 3F
- 最寄駅
- 東京メトロ有楽町線 護国寺駅徒歩3分
東京メトロ丸ノ内線 茗荷谷駅徒歩12分
東京メトロ副都心線 雑司が谷駅徒歩15分
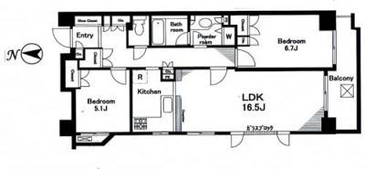
- 間取り
- 2LDK
- 面積
- 69.43m² (21坪)
- 築年月
- 1997年3月
Details物件概要
| 賃料 | 24.8万円 | 共益費 | 12,000円 |
|---|---|---|---|
| 礼金 | 1ヶ月 | 敷金 | 1ヶ月 |
| 償却 | - | 契約期間 | 普通賃貸契約2年 |
| 更新料 | 新賃料 1ヶ月 | バルコニー | - |
| 階数 | 8階建 | 構造 | SRC |
| 所在階 | 3階 | 駐輪場 | 500円 |
| 駐車場 | 空き無 (27,000円〜30,000円) | バイク置き場 | - |
| 現況 | 賃貸中 | 入居時期 | 2026年4月下旬予定 |
| 取引形態 | 一般 | 更新日 | 2026-04-05 |
| 設備 |
宅配BOX オートロック TVモニタ付インタホン 角部屋 トランクルーム 室内洗濯機置場 バストイレ別 駐車場 駐輪場 エアコン 2口以上コンロ システムキッチン 独立洗面所 温水洗浄便座 クローゼット インターネット対応 CATV |
||
| 備考 | ◆ペット飼育規約上不可 ✤トランクルーム:空無し1,700円/月 ✤駐輪場:上段のみ空(電動自転車不可)㊤400円 ✤機械式駐車場:上段のみ空有 ※最新の空き状況を優先 ㊤2.7万円、2.8万円 ㊥2.9万円、3万円 ・中段:3万円(長5000 / 幅1950 / 高1550 / 重2200) ・上段:2.7万円・2.8万円(長5000 / 幅1850・1950 / 高1550 / 重2200) |
||
| 地図 | Google Mapで見る | ||
直接電話する03-5766-2300
営業時間:09:00~19:00 年中無休(年末年始を除く)


沿線・エリア
